Beschrijving
In een charmant straatje in Dinteloord, omringd door karakteristieke jaren ’20 woningen, staat dit sfeervolle huis dat gebouwd is in 1927.
Met een woonoppervlakte van 93 m², een perceel van 154 m² én een ruime garage van maar liefst 34 m² biedt dit huis veel potentie. De 6 zonnepanelen en de nieuwe CV ketel laten zien dat de huidige eigenaar ook zeker aandacht heeft gehad voor een duurzame toekomt!
De straat is recent opnieuw bestraat en netjes onderhouden, met parkeergelegenheid direct voor de deur. De authentieke gevels en het sfeervolle straatbeeld zorgen voor een mooie woonomgeving met een dorps karakter en een vleugje nostalgie. Op loopafstand zijn diverse voorzieningen zoals winkels, scholen en horeca.
Wie pakt de kans om dit huis helemaal naar eigen smaak te moderniseren?
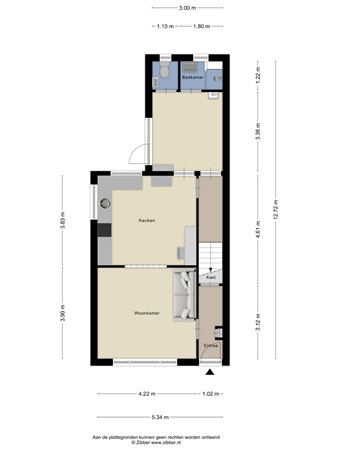
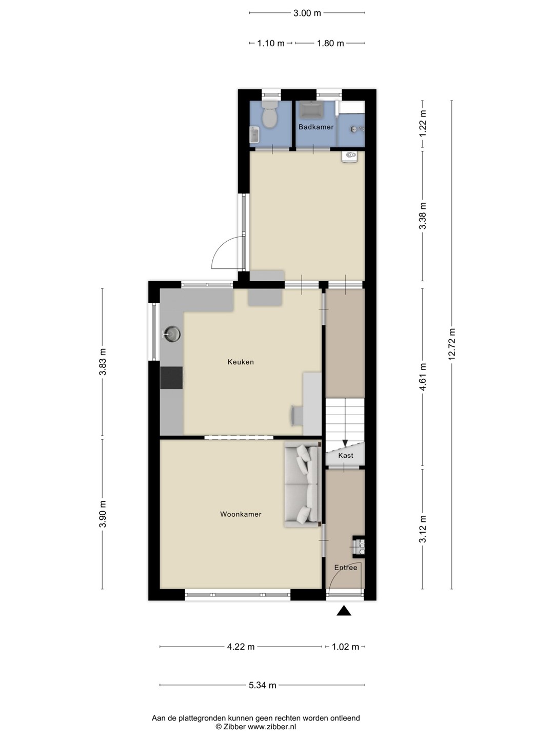
Indeling
Via de voordeur stap je binnen in de hal met een bergkast en een meterkast (voorzien van 9 groepen en een krachtgroep).
Aan de voorzijde van het huis is de lichte voorkamer met aansluitend de eetkamer met open keuken. Deze indeling biedt veel mogelijkheden voor een open of juist meer traditionele inrichting.
De keuken is geplaatst in een hoekopstelling en ingericht met boven- en onderkastjes, inductiekookplaat, oven, afzuigkap, koelkast en vriezer.
Aan de achterzijde van het huis is de bijkeuken welke toegang geeft tot het toilet en tot de badkamer. De toiletruimte is ingericht met een staand toilet en een fonteintje. De badkamer is ingericht met een douche en een wastafelmeubel.
Vanuit de bijkeuken loop je zo de achtertuin in.
Eerste verdieping
Op de eerste verdieping zijn drie slaapkamers van verschillende afmetingen.
Aan de achterkant van het huis is een ruime slaapkamer van ca. 4,35 x 3,05 meter, ideaal als hoofdslaapkamer.
Aan de voorkant zijn nog twee slaapkamers (ca. 3,35 x 2,35 m en 2,35 x 2,15 m), perfect als kinderkamer, werkkamer of logeerkamer.
Daarnaast is er een praktische bergkast van 2,75 x 1,35 meter aanwezig op de overloop, die eenvoudig kan worden benut als extra opbergruimte of mogelijk zelfs als basis voor een (tweede) badkamer.
Tuin
De achtertuin is een fijne plek met potentie voor gezellige terrassen en mooie borders met bloemen en planten.
Halverwege de tuin staat de ruime garage van 34 m²: ideaal voor hobbyisten, als opslag of zelfs als werkruimte.