Beschrijving
Wauw, wat gaat er een mooi huis schuil achter deze karakteristieke gevel! Dit huis is in afgelopen maanden helemaal gerenoveerd , verduurzaamd en gemoderniseerd. Het is instapklaar, dus dozen inpakken en verhuizen maar!
Dankzij onder andere de zonnepanelen, volledige isolatie en HR++ glas, heeft het huis energielabel A gekregen en dat is natuurlijk mooi meegenomen.
Het huis staat in één van de oudste straatjes van Dinteloord maar - net zoals het huis - is ook de straat recent helemaal aangepakt en voorzien van nieuw straatwerk.
Het is een eenrichtingsstraat met parkeervakken aan beide kanten. Mocht je er niet voor kiezen om je auto binnen te zetten in de grote garage achter het huis, dan is vóór het huis in een van de parkeervakken altijd wel een plekje te vinden.
Indeling
Heb je de mooie voorgevel bewonderd? Dan is het tijd om naar binnen te gaan!
Meteen al in de hal heb je het gevoel dat je een nieuwbouwhuis binnenstapt. Weggewerkt achter schuifdeuren is de meterkast en de verdeling van de vloerverwarming en een stijlvolle donkere deur geeft toegang tot de ruime lichte woonkamer.
Wat een ruimte en wat een mogelijkheden om het in te richten hier. Kom maar door met die grote eettafel een gezellige zithoek om de mooiste momenten te beleven met jouw familie en vrienden!
In de woonkamer is een open doorgang naar de keuken aan de achterkant van het huis. Deze grenst met dubbele tuindeuren aan het terras.
De keuken is ingericht met twee rechte opstellingen: één onder het raam aan de rechterkant van het huis, met onderkastjes, spoelbak, vaatwasser, inductiekookplaat en schuine afzuigkap. Tegenover deze lage opstelling is een hoge kastenwand met veel opbergruimte, een koel/vriescombinatie en een combi oven/magnetron.
Op de vloer van de gehele begane grond ligt pvc in visgraatmotief, de muren en plafonds zijn strak gestuukt.
Vanuit de keuken gaan we naar een achterhal die toegang geeft tot een kelder, tot de toiletruimte, tot de eerste verdieping en - via de achterdeur - tot de tuin.
De kelder is een heerlijk koele ruimte van circa 3m * 4m en de ideale plek om jouw voorraad op te slaan en de lekkerste flessen wijn te bewaren.
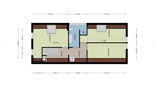
Eerste verdieping
Bovengekomen op de eerste verdieping zien we meteen dat ook hier de moderne stijl is doorgezet, met behoud van de oorspronkelijke karakteristieke sfeer.
Deze verdieping is ingedeeld met een overloop, 3 ruime slaapkamers en een prachtige 'hotel chique' badkamer.
De overloop en de slaapkamers vormen een mooie rustige eenheid met overal dezelfde frisse lichte laminaatvloer en strak gestuukte wanden en plafonds.
In de slaapkamers aan de voorkant van het huis is de dakconstructie zichtbaar waardoor je die oude karakteristieke sfeer krijgt, maar dan in een nieuw jasje. De slaapkamer aan de achterkant van het huis heeft ook zicht op de nok en deze is strak afgewerkt.
Op de overloop is de cv ketel opgesteld en een aansluitpunt voor de wasmachine gemaakt.
En dan de badkamer: met grote marmerlooktegels op de wanden en - in hetzelfde formaat - stoere gemêleerd grijze tegels op de vloer, zwarte kranen en wastafel en wc is dit een mooie moderne badkamer. Er is veel daglicht door de grote ramen in de kunststof dakkapel; deze ramen hebben gematteerd glas, waardoor je niet bang hoeft te zijn voor 'inkijk' vanaf de straat.
Ook op deze verdieping zijn alle kozijnen van kunststof en voorzien van dubbel HR ++ glas. Verwarming en koeling van de slaapkamers kan door de airco-units op elke kamer. De vloer van de badkamer is voorzien van vloerverwarming.
Tuin
De tuin is bijna volledig bestraat en heeft een mooie strook tuingrond die je zo groen en kleurrijk kunt maken als je zelf wilt. De tuin ligt op het noordoosten en dat betekent dat de ochtendzon direct achter het huis schijnt en de avondzon achterin de tuin.
De tuin is omheind met een schutting, aan de straatzijde een enkele poort en aan de achterzijde een dubbel poort.
Last but not least is er een grote garage schuur van maar liefst 30 m². Uiteraard geschikt om de auto binnen te zetten maar ook een ideale hobby of klusruimte. Deze is vanuit de garage toegankelijk via een loopdeur en vanaf de achtergelegen straat via een loopdeur én een garagedeur.