Beschrijving
Vrijstaand wonen in een jonge, energiezuinige woning in een kindvriendelijke buurt? Aan de Watermolen 10 in Dinteloord wordt die woonwens werkelijkheid.
Dit huis beschikt over energielabel A+, is volledig gasloos en uitgerust met maar liefst 34 zonnepanelen. Dat betekent comfortabel wonen met lage energielasten. Rijd je elektrisch? Dan komt de aanwezige laadpaal op eigen terrein natuurlijk perfect van pas.
Met vier volwaardige slaapkamers (met de mogelijkheid tot vijf) en een ruime bijkeuken - momenteel deels ingericht als kantoor - is er meer dan voldoende ruimte voor het hele gezin. Bovendien zijn de badkamer en toiletruimte recent en smaakvol gerenoveerd, waardoor je hier direct zorgeloos kunt wonen.
Dinteloord is een gezellig West-Brabants dorp met diverse voorzieningen binnen handbereik. Dankzij de gunstige ligging nabij de uitvalswegen bereik je steden als Rotterdam, Breda en Antwerpen binnen circa 30 tot 45 autominuten.
Nieuwsgierig geworden? Lees snel verder en ontdek wat dit huis je allemaal te bieden heeft.
Indeling
De entree van de woning bevindt zich aan de zijkant van het huis. Via de voordeur betreed je de hal met moderne toiletruimte. Kom je met een kinderwagen of veel boodschappen thuis? Dan is de toegang via de garage een praktische en comfortabele oplossing. In de hal bevindt zich de meterkast, die in 2021 is vernieuwd, gelijktijdig met de installatie van de warmtepomp en de zonnepanelen.
De toiletruimte is in 2023 gemoderniseerd en uitgevoerd in een eigentijdse stijl met een zwevend toilet en een fonteintje met inbouwkraan. Het subtiele nisje zorgt niet alleen voor een strak geheel, maar is ook bijzonder praktisch. Spreekt deze afwerking je aan? Dan belooft de badkamer boven zeker iets moois.
De woonkamer is heerlijk ruim en dankzij de erker aan de voorzijde valt er veel natuurlijk licht binnen. Er is meer dan voldoende ruimte voor een royale zithoek én een grote eettafel. Daarnaast blijft er nog volop plek over voor bijvoorbeeld een werk- of speelhoek. De wanden zijn strak gestuct en op de vloer liggen plavuizen met comfortabele vloerverwarming. Deze vloerverwarming loopt door in de hal, keuken, toiletruimte en badkamer.
Op dagen dat je slechts licht wilt verwarmen, biedt de airconditioning uitkomst. Uiteraard zorgt deze op warme dagen juist voor aangename verkoeling.
De keuken bevindt zich aan de achterzijde van de woning en is geplaatst in een praktische hoekopstelling. De keuken is uitgerust met een koelkast, combi-oven, vaatwasser (ca. 2018), inductiekookplaat (2021) en afzuigkap. Via de schuifpui staat de keuken in directe verbinding met de achtertuin — ideaal om op zonnige dagen binnen en buiten moeiteloos in elkaar over te laten lopen.
Vanuit de woonkamer is de bijkeuken bereikbaar. Deze ruimte is momenteel deels ingericht als kantoor, maar biedt uiteraard meerdere gebruiksmogelijkheden. Hier bevinden zich tevens de verdeler van de vloerverwarming en een ruime inbouwkast met de opstelplaats voor de wasmachine en droger. Vanuit de bijkeuken is eveneens de tuin toegankelijk.
Door de realisatie van de bijkeuken is de oorspronkelijke garage verkleind. Een compacte auto past hier nog in, maar de ruimte leent zich bij uitstek als berging, klusruimte of stalling voor fietsen en eventueel een motor. De auto kan comfortabel op de eigen oprit worden geparkeerd.
Eerste verdieping
Via de trap bereik je de ruime en lichte overloop, die dankzij het aanwezige raam prettig wordt verlicht met daglicht. Vanaf hier heb je toegang tot drie slaapkamers en de badkamer.
De grootste slaapkamer bevindt zich aan de voorkant van het huis. Met afmetingen van circa 3,48 x 4,61 meter is dit een volwaardige hoofdslaapkamer met voldoende ruimte voor een groot tweepersoonsbed en een royale kledingkast.
De tweede slaapkamer is aan de achterkant van het huis en is circa 9 m² groot. Deze kamer is ideaal als kinderkamer, maar leent zich ook uitstekend als hobbyruimte of comfortabele thuiswerkplek.
De derde slaapkamer meet circa 3,97 x 1,97 meter en is eveneens geschikt als éénpersoons slaapkamer, werkkamer of bijvoorbeeld als inloopkast.
De badkamer is drie jaar geleden volledig vernieuwd en straalt luxe en comfort uit. De ruimte is ingericht met een inloopdouche, een ligbad en een dubbel wastafelmeubel — ideaal voor het hele gezin. Bij de afwerking is gekozen voor een stijlvolle combinatie van hoogwaardige tegels en strak stucwerk, aangevuld met moderne inbouwkranen. Uiteraard is ook hier vloerverwarming aanwezig, wat zorgt voor extra comfort.
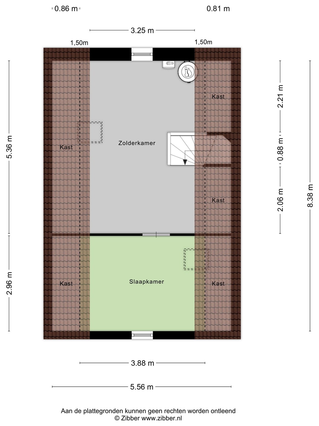
Tweede verdieping
Op de tweede verdieping word je direct verrast door de royale overloop van maar liefst circa 17,5 m². Een veelzijdige ruimte die zich uitstekend leent als sportruimte, thuiswerkplek of hobbykamer. Uiteraard bestaat hier ook de mogelijkheid om een vijfde slaapkamer te realiseren, afhankelijk van je woonwensen.
Op deze verdieping zijn ook de technische installaties, waaronder de Daikin warmtepomp (2021), de elektrische boiler met een royale inhoud van 200 liter en de unit voor de mechanische ventilatie. Dankzij de aanwezige airconditioning is deze verdieping comfortabel te koelen én te verwarmen.
Vanuit de overloop heb je toegang tot een extra slaapkamer van circa 10 m². Waar de overloop tot in de nok reikt, is boven deze slaapkamer een praktische bergzolder gecreëerd - ideaal voor het opbergen van seizoensspullen of archief.
Tuin
De achtertuin is verzorgd en sfeervol aangelegd met een combinatie van sierbestrating, gazon en diverse struiken en vaste beplanting. Dankzij het groenblijvende karakter geniet je ook in de winter van een prettige uitstraling én extra privacy.
De tuin is gelegen op het zuidwesten, waardoor je hier optimaal profiteert van de zon. Ook na een werkdag kun je nog heerlijk buiten zitten en genieten van de avondzon.
Benieuwd of dit jouw nieuwe woongeluk kan worden? We laten je deze woning graag persoonlijk zien en vertellen je met plezier meer over het huis, de wijk en het dorp.