Beschrijving
In een rustige en ruim opgezette straat staat dit hoekhuis met garage en een heerlijk ruime tuin op het zuidoosten.
De huidige eigenaar heeft hier maar liefst 48 jaar met veel plezier gewoond, wat veel zegt over het fijne wooncomfort en de prettige woonomgeving. In de loop der jaren is het huis goed onderhouden en op diverse punten verbeterd. Zo zijn de kozijnen op de begane grond en eerste verdieping uitgevoerd in kunststof met dubbel glas en in 2025 opnieuw voorzien van folie, waardoor ze weer een frisse uitstraling hebben.
Daarnaast zijn de gevels circa 15 jaar geleden gereinigd en geïmpregneerd, is het huis voorzien van spouwmuurisolatie en liggen er sinds 2019 maar liefst 12 zonnepanelen op het dak. Voor extra comfort zijn op de begane grond en eerste verdieping rolluiken geplaatst.
Dit alles zorgt ervoor dat het huis energielabel B heeft gekregen.
Kortom: een degelijk onderhouden hoekhuis met garage, een zonnige tuin en volop mogelijkheden om er jouw nieuwe thuis van te maken.
Indeling
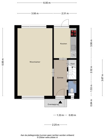
We gaan het huis binnen via de hal met trapopgang naar de eerste verdieping en toegang tot de toiletruimte, woonkamer, keuken en een praktische, ruime trapkast en de meterkast (uitgerust met 8 groepen, een kookgroep, een aparte groep voor de zonnepanelen en 3 aardlekschakelaars).
De toiletruimte is netjes en ingericht met een zwevend toilet en een fonteintje.
De gezellige en verzorgde keuken is ingericht met een rechte keukenopstelling en voorzien van een fraai kunststof werkblad, diverse boven- en onderkastjes en de benodigde inbouwapparatuur: een inductiekookplaat, afzuigkap, vaatwasser, koelkast en een combi oven/magnetron. Vanuit de keuken is er een directe deur naar de achtertuin.
De doorzonwoonkamer is licht en ruim en biedt aan de voorzijde zicht op het rustige, groene straatbeeld. Aan de achterzijde kijk je uit op de eigen achtertuin, waardoor binnen en buiten mooi met elkaar in verbinding staan.
Eerste verdieping
De overloop op de eerste verdieping geeft toegang tot drie slaapkamers, de badkamer en de trapopgang naar de tweede verdieping.
De badkamer is uitgevoerd in een mooie neutrale kleurstelling en praktisch ingericht met een zwevend toilet, een wastafelmeubel en een inloopdouche met zowel een regendouche als een handdouche.
De drie slaapkamers hebben afmetingen van respectievelijk circa (4,05 x 3,56 m), (2,71 x 3,56 m) en (3,08 x 2,31 m) en zijn daarmee stuk voor stuk goed bruikbaar. De huidige eigenaar heeft de kleinste kamer ingericht als waskamer, met aansluitpunten voor een wasmachine en droger. Uiteraard kan deze ruimte, indien gewenst, ook weer eenvoudig worden gebruikt als slaap-, werk- of hobbykamer.
Tweede verdieping
De tweede verdieping is praktisch ingedeeld met een overloop en bergruimte onder de schuine daklijn. Daarnaast is er een bergruimte met de opstelling van de cv-ketel, waar momenteel een hobbyruimte is ingericht.
Op deze verdieping is de vierde slaapkamer. Dankzij de dakkapel is deze kamer extra groot en licht, met bovendien ook weer handige bergruimte onder de schuine dakzijde.
Tuin
De achtertuin is volledig voorzien van sierbestrating en daardoor lekker onderhoudsvriendelijk aangelegd. Daarnaast zorgen twee groene borders voor een verzorgde uitstraling. De tuin is via een poort naast het huis eenvoudig bereikbaar.
Vanuit de tuin is er toegang tot de garage. Deze is ook vanaf de straat bereikbaar en groot genoeg om een auto binnen te parkeren, maar biedt uiteraard ook mogelijkheden voor extra opslag of hobbyruimte.