Beschrijving
Welkom aan de Stoofdijk 44 in Dinteloord!
Dit vrijstaande dijkhuis met aangebouwde, ruime schuur staat op een schitterende plek aan de Stoofdijk. Aan de achterkant van het huis is een grote tuin met vrij uitzicht over de achtergelegen landerijen, waardoor je hier kunt genieten van veel privacy en een heerlijk gevoel van ruimte.
Het is een plek waar het buitenleven centraal staat, terwijl de voorzieningen van het dorp toch dichtbij zijn.
Het huis heeft 14 zonnepanelen - bijna helemaal voorzien van kunststof kozijnen met HR ++ en mede daardoor een energielabel C.
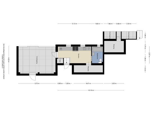
Indeling
We stappen het huis binnen via de voordeur in een hal met ruimte voor de garderobe. Vanuit de hal, komen we in de woonkamer, waar de eikenhouten vloer meteen voor warmte en sfeer zorgt.
De woonkamer heeft een speelse verhoging/bordes; een uitnodigende plek om te zitten—bijvoorbeeld met een stapel kussens als gezellige loungehoek.
Een stoer extra element in deze ruimte is de Kanuk-houtkachel, die via ventilatie-uitgangen een heerlijke, gelijkmatige warmte door de kamer verspreidt.
Vier treden lager is de keuken. De rechte keukenopstelling onder het raam biedt een mooi, weids uitzicht over de achtergelegen landerijen. De ruimte is uitgerust met een Boretti fornuis met grote en kleine oven, inductiekookplaat, bijpassende afzuigkap en een Quooker-kraan.
Het hardstenen werkblad, de vaatwasser, de vloerverwarming, een praktische bergkast en toegang tot een kelderruimte maken de keuken helemaal compleet.
Naast de keuken is de badkamer, voorzien van een zwevend toilet, wastafelmeubel en ligbad. Dankzij de elektrische vloerverwarming is het hier altijd comfortabel. Vanuit de keuken is er ook toegang tot de overkapping en de tuin.
Terug naar de woonkamer, zijn via een klein halletje de toiletruimte, een slaapkamer en de schuur bereikbaar.
De slaapkamer biedt mooi uitzicht op de tuin — een heerlijke plek om wakker te worden en de dag te beginnen. Aan de kamer grenst een balkonnetje, dus als je wilt, kan je je dag lekker opstarten in de frisse buitenlucht.
De aangebouwde schuur geeft verrassend veel mogelijkheden. Dankzij de pellet kachel is de ruimte goed te verwarmen, waardoor hij veelzijdig te gebruiken is. Via een vaste trap is een praktische bovenruimte bereikbaar met onder andere een aansluitpunt voor de wasmachine.
Beneden is er plaats voor een auto of hobbyruimte; boven is er ruimte voor bijvoorbeeld een hobbykamer, logeerkamer of werkplek - net wat jij nodig hebt.
Eerste verdieping
De eerste verdieping van het huis is te bereiken via een vaste trap in de woonkamer.
Hier is een lichte overloopslaapkamer, voorzien van 2 dakkapellen en airconditioning. Hiermee is het een fijne ruimte die zowel als slaap-, werk- als hobbykamer gebruikt kan worden. Daarnaast is er een tweede slaapkamer, welke het totaal aan slaapkamers in het huis op 3 brengt. Een 4e slaapkamer is te creëren door de overloop te splitsen.
Tuin
Achter het huis ligt een verrassend grote en sfeervolle tuin, waar je op meerdere plekken heerlijk kunt genieten van het buitenleven. Direct aan het huis is een terras, perfect voor een kop koffie in de ochtendzon. Via de overkapping is er een poort naar de straatzijde, wat de tuin ook praktisch toegankelijk maakt.
Verderop in de tuin is een verzorgd gazon, omzoomd door mooie beukhaagjes, kleurrijke borders en enkele kleine palmbomen, die een vleugje vakantiegevoel brengen. Een kleine vijver met fontein zorgt voor extra sfeer en een ontspannen geluid op de achtergrond. Overigens blijft de robot grasmaaier achter, dus dat scheelt weer een uurtje maaien per week!
Een overkapping achterin de tuin vormt een beschutte plek om het hele jaar door buiten te kunnen zitten.
Droom je van een paar eigen kipjes? Daar is hier zeker ruimte voor — een charmant detail dat helemaal past bij het landelijke gevoel van deze plek.