Beschrijving
Welkom in deze prachtig gelegen semibungalow aan de Prinses Marijkestraat in Dinteloord. Op een royaal perceel van 750 m² staat een woning die barst van de mogelijkheden. Dankzij de slaapkamer en badkamer op de begane grond is het huis volledig levensloopbestendig, terwijl de drie tot vier slaapkamers en tweede badkamer op de verdieping ruimte bieden aan een gezin, hobby’s of logees. Het is een huis dat meegroeit met elke levensfase.
De ligging is heerlijk rustig, en de indeling verrassend ruim. Modernisering is gewenst, maar juist dat maakt dit tot een unieke kans om het helemaal naar eigen smaak te transformeren. Van een frisse, eigentijdse woonstijl tot een warme, landelijke sfeer, hier kun je jouw woonwensen vanaf de eerste schets waarmaken.
Wie ziet zichzelf hier straks genieten van nieuw woongeluk? Plan een bezichtiging en ontdek de mogelijkheden.
Indeling
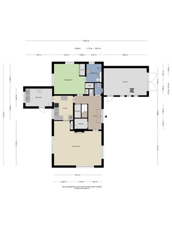
De woning betreed je via de dubbele deuren aan de voorzijde, die meteen zorgen voor een prettige lichtinval. De ruime hal vormt het hart van de begane grond en geeft toegang tot de woonkamer, keuken en de slaapkamer met badkamer op de begane grond. Daarnaast vind je hier de volgende ruimtes:
- Technische ruimte: Hier staat de cv‑ketel uit 2019 en mocht je het huis volledig gaan verduurzamen, dan is hier ook voldoende ruimte voor een warmtepomp.
- Toilet: Ruim opgezet en voorzien van een staand toilet en fonteintje.
- Meterkast: Uitgerust met acht groepen, een kookgroep en twee aardlekschakelaars.
- Voorraadkast: Een diepe, smalle kast met veel planken—ideaal voor voorraad en huishoudelijke spullen.
We vervolgens onze weg naar de woonkamer. Deze is opvallend licht dankzij de grote raampartijen rondom en heeft een mooie, houten parket vloer. Omdat de tuin het huis omringt, bepaal je zelf welk uitzicht je favoriete plek wordt. En is de zon net wat te fel, dan gebruik je de elektrische zonneschermen om de hitte buiten te houden. Aan de achterzijde geeft een schuifpui toegang tot de tuin. Een houtkachel zorgt voor extra sfeer en behaaglijke warmte. Verder is er een vaste kast, handig voor servies of glaswerk. In deze kast vind je ook de smalle toegang tot de kruipruimte.
De keuken ligt aan de achterzijde van de woning en biedt een fijn uitzicht op de tuin. Tijdens het koken kijk je uit op het groen en in het voorjaar op de bloesem. De keuken is gedateerd, maar functioneel ingericht met een elektrische kookplaat, vaatwasser, koelkast en vriezer. Vanuit de keuken loop je door naar de ruime bijkeuken, voorzien van een aanrechtblad met dubbele spoelbak, aansluitingen voor wasmachine en droger en een boiler voor het warme water in de keuken.
Aan de zijkant van het huis bevindt zich de slaapkamer op de begane grond. Ook hier zorgen de ramen voor een goede lichtinval. De kamer beschikt over twee vaste kasten en een grote inbouwkast. Vanuit de slaapkamer bereik je de badkamer, uitgerust met een zwevend toilet, urinoir, douche en wastafelmeubel.
Uiteraard is de slaapkamer flexibel te gebruiken als slaapkamer, kantoor, speelkamer, sportkamer of rustige werkplek.
Eerste verdieping
De eerste verdieping heeft een overloop die toegang geeft tot 3 slaapkamers en een badkamer. Op één dakkapel na zijn alle kozijnen op deze verdieping vervangen door kunststof kozijnen met HR++‑glas, wat zorgt voor goede isolatie en een onderhoudsarme afwerking.
Aan de linkerzijde ligt de grootste slaapkamer, een paar treetjes hoger dan de rest van de verdieping. De huidige eigenaar heeft hier een extra ruimte gecreëerd door een tussenwand te plaatsen. Door dit wandje te verwijderen, ontstaat een royale master bedroom van 21,5 m². Uiteraard kan je ook hier ook 2 slaapkamers behouden.
Aan de achterkant bevindt zich de tweede slaapkamer. Deze kamer is ongeveer 9 m² en is geschikt als eenpersoonskamer, kantoor, of hobbyruimte.
De derde slaapkamer ligt aan de rechterkant van het huis en is eveneens heerlijk ruim met haar 16 m². Daarnaast heeft het vier vaste kasten. Hierdoor blijft er meer dan genoeg ruimte over voor een tweepersoonsbed en een comfortabele inrichting.
Op deze verdieping bevindt zich ook een compacte maar functionele badkamer, voorzien van een wastafel, douche en zwevend toilet.
Deze verdieping biedt zo volop mogelijkheden om het huis aan te passen aan verschillende gezinssamenstellingen en woonwensen.
Tweede verdieping
Via een luikje op de overloop heb je toegang tot een bergzolder.
Tuin
De woning staat midden op een royaal perceel van 750 m², waardoor je rondom het huis kunt genieten van zowel zon als schaduw op elk moment van de dag. De tuin is verzorgd aangelegd met sierborders, volwassen struiken en een gazon. Aan de voorzijde ligt ook de oprit, geschikt voor het parkeren van een auto, met directe toegang tot de garage. Deze garage is praktisch uitgevoerd met een betegelde vloer, een bergzolder en elektrische houten deuren.
Wanneer je om het huis heen loopt, kom je uit bij het zonnige terras op het zuiden. Dit is een heerlijke plek om te ontspannen, omringd door groene beplanting, gazon en kleurrijke borders. Een tuinhuis biedt extra opbergruimte voor tuingereedschap, fietsen of seizoensspullen, waardoor de tuin netjes en overzichtelijk blijft.
In de achtertuin zie je overigens ook de 12 zonnepanelen (2012) gelegen op het zuiden.