Beschrijving
In een mooie groene straat aan de rand van Dinteloord staat deze verrassend ruime twee-onder-een-kapwoning met eigen garage en ruime, verzorgde tuin. Met maar liefst vier slaapkamers, twee badkamers en een doordachte indeling is dit een ideaal huis voor gezinnen of voor mensen die gewoon graag ruim en comfortabel willen wonen.
Het huis is goed onderhouden en voorzien van aluminium kozijnen met HR-glas, deels dubbel en deels zelfs triple glas – voor een fijn woonklimaat en goede isolatie.
Dit huis biedt een goede mix van ruimte, licht en duurzaamheid op een mooie locatie. Ga jij hier nieuw woongeluk vinden?
Indeling
Via de hal met garderoberuimte, meterkast en toilet, stappen we het huis binnen.
De ruime woonkamer is aan de voorkant van het huis en sfeervol ingericht met een lichte parketvloer en een gezellige open haard – dé plek om samen te komen op koude dagen.
De aangebouwde serre is een mooie verlenging van de woonkamer en zowel vanuit de woonkamer als via de tuin bereikbaar. Deze lichte ruimte is volledig afsluitbaar en vormt een heerlijke plek om te genieten van het uitzicht op de tuin, ongeacht het seizoen.
De keuken is aan de achterzijde van het huis en ingericht met een praktische hoekopstelling. Hier vind je alle benodigde inbouwapparatuur, waaronder een vaatwasser, keramische kookplaat, oven, combimagnetron en een koelkast.
Via de bijkeuken/ achterhal is de aanpandige garage bereikbaar én een badkamer met douche en wasmachine-aansluiting.
De garage is met een oppervlakte van circa 45 m² zeker ruim te noemen en kan plaats bieden voor een auto en heeft daarnaast ook volop bergruimte of mogelijkheden voor hobby’s.
Eerste verdieping
Via de trap in de woonkamer gaan we naar de eerste verdieping.
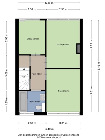
Hier zijn drie goed bemeten slaapkamers, elk voorzien van daglicht en praktische indelingsmogelijkheden.
De afmetingen van de kamers zijn (3,81m x 3,01m) en (2,98m x 4.25m) en (2,93m x 2,37m). Of je nu een thuiskantoor, kinderkamer of hobbyruimte nodig hebt – deze verdieping biedt volop flexibiliteit.
De badkamer is verzorgd en compleet ingericht met een ligbad, wastafelmeubel en een zwevend toilet. Een fijne plek om na een drukke dag tot rust te komen.
Tweede verdieping
Vanaf de overloop leidt een vaste trap naar de tweede verdieping.
Hier is een voorzolder met praktische bergruimte en een bergkast waarin de CV-ketel is geplaatst (Intergas - 2024). Aansluitend is een royale vierde slaapkamer, voorzien van een dakkapel die zorgt voor extra ruimte en veel daglicht. Ook deze kamer is veelzijdig inzetbaar – van master bedroom tot werk- of logeerkamer.
Tuin
De achtertuin is gesitueerd op het noordoosten en is met zorg onderhouden. Een fraai gazon en kleurrijke, volwassen borders zorgen voor een groene en sfeervolle uitstraling. Dankzij de ligging kan je hier in de ochtend en vroege middag heerlijk van de zon genieten, terwijl je later op de dag juist de koelte op kan zoeken. De tuin biedt volop privacy en vormt een fijne plek om buiten te ontspannen, te tuinieren of gezellig samen te zijn.