Beschrijving
Levensloopbestendig wonen op een mooie plek in Dinteloord!
Deze twee-onder-een-kapwoning combineert comfort en toekomstbestendig wonen op een aantrekkelijke manier. Met een slaapkamer en badkamer op de begane grond, een fijne tuin, eigen oprit en garage én extra slaapkamers boven, is dit een huis dat met je meegroeit.
Het huis heeft energielabel B en is na afgifte van dit label nog verder verduurzaamd met onder andere zonnepanelen en airconditioning. Dit zorgt niet alleen voor extra wooncomfort, maar ook voor lagere energielasten.
Nieuwsgierig geworden? We laten je dit huis graag van binnen zien!
Indeling
Je komt binnen in de hal met meterkast (8 groepen, 3 aardlekschakelaars en aansluiting voor zonnepanelen) en loopt door naar de woonkamer.
De woonkamer is prettig ingedeeld met aan de voorzijde een ruime zithoek en aan de achterzijde plaats voor een eethoek met zicht op de open keuken. Zowel de woonkamer als de keuken zijn voorzien van vloerverwarming. In combinatie met radiatoren en airconditioning is het hier het hele jaar een fijne temperatuur te regelen.
Voor extra comfort zijn aan de achterzijde rolluiken geplaatst en is aan de voorzijde een elektrisch zonnescherm.
De keuken is in 2021 vernieuwd en uitgerust met diverse inbouwapparatuur, waaronder een vaatwasser, magnetron, koelkast, inductiekookplaat en afzuigkap.
Via een tussenhal is er toegang tot de slaapkamer, badkamer en garage. Het volledige woonprogramma bevindt zich hiermee op de begane grond – ideaal voor levensloopbestendig wonen. De slaapkamer (ca. 13,5 m²) biedt genoeg ruimte voor een tweepersoonsbed en een grote kast.
De badkamer is deels vernieuwd en voorzien van een modern wandcloset en wastafelmeubel. Het ligbad en de douche zijn origineel uitgevoerd. Of je nu kiest voor behoud of voor een moderne inloopdouche: hier kun je jouw eigen wensen realiseren.
De garage is zowel van binnenuit als via de oprit bereikbaar en biedt plaats aan de wasmachine, droger, HR-combiketel en omvormer van de zonnepanelen. Een praktische en multifunctionele ruimte.
Via een tweede tussenhalletje is er toegang tot de toiletruimte en de trapopgang naar de eerste verdieping.
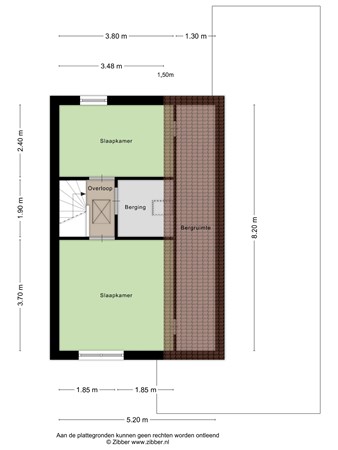
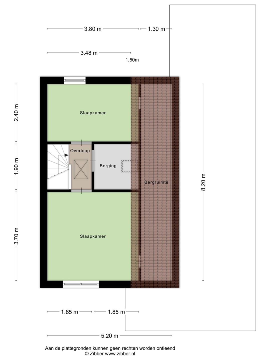
Eerste verdieping
Op de eerste verdieping zijn twee slaapkamers en een extra (kleinere) kamer, ideaal als inloopkast, werkkamer of hobbyruimte. Ook is het mogelijk om hier een tweede badkamer te realiseren.
De grootste slaapkamer (ca. 13 m²) is aan de voorzijde van het huis, de tweede slaapkamer (ca. 8 m²) aan de achterzijde. Beide kamers beschikken over praktische bergruimte achter de knieschotten.
Via een losse trap bereik je de bergzolder: ideaal voor het opbergen van spullen die je niet dagelijks nodig hebt.
Tuin
Er is zowel een voor- als een achtertuin, waardoor je op elk moment van de dag een fijne plek in de zon of schaduw kunt vinden.
De voortuin is gelegen op het zuiden en ideaal om een klein zitje te creëren om heerlijk te ontspannen en te genieten van de zon.
De achtertuin ligt op het noorden, maar dankzij de diepte zijn er ook hier gedurende de dag voldoende zonnige plekken te vinden. De tuin is ruim opgezet en biedt een mooie balans tussen groen en gebruiksgemak: prettig om van te genieten, zonder dat het veel onderhoud vraagt.
Via een praktische achterom bereik je een achtergelegen binnenpleintje. Ideaal wanneer je de tuin wilt bereiken zonder door het huis te hoeven lopen.