Beschrijving
Wees welkom in deze leuke twee-onder-1 kap in Steenbergen!
Met 4 slaapkamers, een lekkere tuin, een grote oprit én een garage, is er voldoende ruimte voor het hele gezin om lekker te wonen en te leven. Of misschien ben je met zijn 2-en en wil je allebei een kamer om thuis te werken en te hobbyen? Het is hier allemaal mogelijk.
Indeling
Je komt het huis binnen in de hal met meterkast. Deze is dit jaar vernieuwd en heeft 6 groepen, 3 aardlekschakelaars, een extra fornuisgroep en een groep voor de zonnepanelen.
In de hal is een nisje voor de kapstok. Erboven zit een praktische bergkast, waarvan we er in dit huis nog veel meer tegen komen.
De woonkamer en de keuken hebben een mooie lichte laminaatvloer. Daardoor vormt de voor- en de achterzijde van het huis een mooi geheel. De keuken zit aan de voorzijde, dus tijdens het koken kijk je lekker op de mooi aangelegde voortuin en op de straat. De keuken staat in een hoekopstelling en is voorzien van een inductiekookplaat, afzuigkap, koel-vriescombinatie, een combi oven en een vaatwasser.
De woonkamer ligt aan de achterzijde van het huis en biedt ruimte voor een lekkere eettafel en een grote zithoek. Via een loopdeur kom je in de tuin, waar we later meer over vertellen. Ben je nu al nieuwsgierig? Kijk dan snel naar de foto's van de tuin!
Eerste verdieping
Ook de eerste verdieping is voorzien van een mooie, lichte laminaatvloer.
De grootste slaapkamer ligt aan de achterzijde van het huis en is (4,21m bij 2,76m). Onder de schuine wand vind je een mooie ingebouwde kledingkast.
De 2e slaapkamer ligt aan de voorzijde van het huis en is nu in gebruik als kinderkamer. De maten zijn (2,76m * 2,84m).
De 3e slaapkamer ligt weer aan de achterzijde en is (1,94m bij 3,93m). Het is een goede ruimte voor kinderkamer of kantoor, of misschien gebruik je hem - net als de huidige eigenaren - als kastenkamer.
Op deze kamer vind je ook nog praktische bergruimte achter de knieschotten.
De badkamer is van 2009 en is lekker licht, door de lichte tegels. Met een douchecabine, een wastafel en een zwevend toilet vind je er alles wat je nodig hebt. Een bergkast zorgt wederom voor nog wat extra bergruimte.
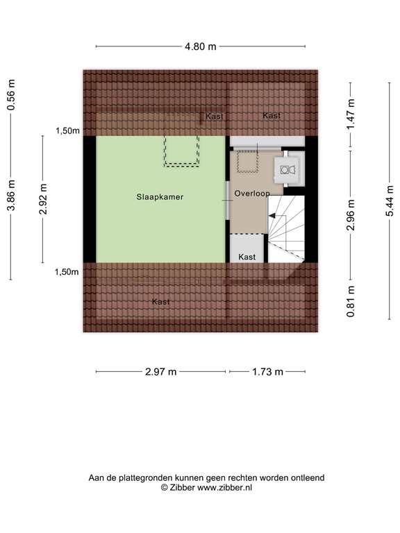
Tweede verdieping
De tweede verdieping bestaat uit een overloop en een slaapkamer.
Op de overloop vind je bergkasten, een kast met daarin de HR combi ketel (2014) en de opstelplaats voor de wasmachine en de droger. Ook hangt hier de omvormer van de 10 zonnepanelen (2022).
De slaapkamer is een mooie, lichte ruimte van (2,97m * 2,92m) . Achter de knieschotten vind je hier nog extra bergruimte.
Tuin
Wat een fijn plekje is deze tuin! Je kunt er de hele dag genieten van de zon.
Hij is aangelegd in 2019 en de houten berging is in 2023 geplaatst. Met een groene haag en mooie gemetselde plantenbakken, is het een heerlijke, groene plek.
In 2023 is de tuin voorzien van kunstgras, zodat je het hele jaar dooreen groene grasmat hebt. Aan de achterzijde vind je een overkapping die voorzien kan worden van schaduwdoeken. Is het zo warm, dat je wel wat extra schaduw kan gebruiken, dan rol je ze in een paar tellen uit. Wil je juist genieten van de avondzon, dan heb je ze ook zo weer ingerold. De houten berging is een goede plek voor tuinspullen of tuinkussens. Zo kan je de garage gebruiken voor de fietsen of één auto. Of misschien zet je de auto's op de oprit en maak je hier je eigen kantoor of salon aan huis? We zijn benieuwd naar jullie plannen.
Plattegronden
172905829_1552633_panne_begane_grond_first_design_20250519_eb0a4b.jpg
172905829_1552633_panne_eerste_verdiepi_first_design_20250519_0574e0.jpg
172905829_1552633_panne_tweede_verdiepi_first_design_20250519_87585e.jpg
172905829_1552633_panne_berging_first_design_20250519_ad3012.jpg