Beschrijving
Laat je verrassen door de ruimte die dit geweldige hoekhuis heeft!
Met maar liefst 157 m² woonoppervlakte én een garage achter het huis van 20 m² is het een heerlijk huis voor een gezin of voor wie van ruimte houdt.
Het staat op loopafstand van onder andere het dorpscentrum van Dinteloord, het mooie park met hertenkamp, basisscholen en het openlucht zwembad.
Wie gaat hier nieuw woongeluk vinden?
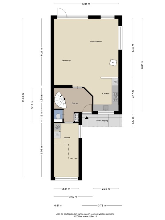
Indeling
Entree via de hal die toegang geeft tot de woonkamer, toiletruimte en een kamer aan de voorkant van het huis. Deze is nu in gebruik als voorraadkamer maar het zou ook een ideale werkkamer of praktijkruimte kunnen zijn!
De woonkamer is een mooie, lichte ruimte met een open keuken.
De keuken is aan de voorkant van het huis en daardoor heb je altijd zicht op de gezellige reuring van de straat als je staat te koken. De keuken is geplaatst in een hoekopstelling en ingericht met een gaskookplaat, afzuigkap, combi-oven, koelkast en vaatwasser. Het leefgedeelte is aan de achterkant van het het huis en grenst aan de tuin. Binnen of buiten eten? Het scheelt nog geen 5 stappen!
Eerste verdieping
Bovengekomen op de eerste verdieping zien we een overloop die toegang geeft tot maar liefst 4 kamers en de badkamer.
Kamer 1 - aan de voorkant van het huis - is een fijne knusse slaapkamer met afmetingen van circa 2,95m x 2,35m.
Kamer 2 - aan de voorkant van het huis - is nu in gebruik als walk in closet en met afmetingen van circa 3,05m x 3,15m natuurlijk ook helemaal geschikt om te gebruiken als slaapkamer.
Kamer 3 - aan de achterkant van het huis - is de grootste kamer van deze verdieping (circa 5,50m x 3,15m). Wordt dit jullie masterbedroom?
Kamer 4 is de voormalige badkamer en wordt nu gebruikt als schoenenkast. Reken alvast maar uit hoeveel schoenen je kwijt kunt in deze kamer van circa (2,65m x 1,70m)!
Alle kamers en de overloop hebben een stoere houtlook laminaatvloer. Dit straalt rust en eenheid uit.
Het paradepaardje van deze verdieping is toch wel de badkamer (3,55m x 2,80m).
Deze is in een mooie kleurcombinatie van zandkleur met antraciet en compleet uitgerust met luxe douche, dubbel wastafelmeubel en toilet.
Tweede verdieping
Dat we hier met een bovengemiddeld groot huis te maken hebben, blijkt ook nog eens uit de tweede verdieping.
Deze is namelijk ingedeeld met een voorzolder met bergkast, een waskamer én een grote slaapkamer.
In de waskamer is naast opstelplaats voor wasmachine en droger ook de CV ketel opgesteld (Nefit ProLine 2012, geplaatst in 2016). Er is bergruimte onder de schuine dakzijde en ook nog voldoende plaats over om bijvoorbeeld een strijkplank en een droogrek te plaatsen.
De slaapkamer op deze verdieping is de perfecte tiener- of gastenkamer. Met een wastafelmeubeltje een fijne plek om de dag op te starten zonder rumoer van huisgenoten. Wie slaapt volgend jaar in deze kamer?
Tuin
De tuin - op NoordOost gelegen - is lekker onderhoudsvriendelijk aangelegd met sierbestrating en een vaste plantenbak. Geen uren werk om netjes te houden, dus tijd genoeg om lekker buiten te zitten.
De tuin wordt afgesloten met een garage, dus jouw auto, motor of fiets kan binnen staan. Of heb je andere plannen met deze ruimte? Je mag het zelf invullen!
Plattegronden
171903385_1546390_zuide_begane_grond_first_design_20250426_93e2fa.jpg
171903385_1546390_zuide_eerste_verdiepi_first_design_20250426_bd18b3.jpg
171903385_1546390_zuide_tweede_verdiepi_first_design_20250426_a8083e.jpg
171903385_1546390_zuide_garage_first_design_20250426_4ebe87.jpg