Beschrijving

Wie wordt de nieuwe eigenaar van dit prachtige pand op een geweldige locatie in het centrum van Dinteloord?
Het is het voormalige gemeentehuis dat inmiddels ruim 20 jaar in gebruik is als kantoorruimte en toonzaal.

Het gebouw heeft een ‘centrum bestemming’ en dat betekent dat verschillende functies - zoals bijvoorbeeld woon-, winkel-  of  kantoorruimte - mogelijk zijn. Ook het realiseren van bijvoorbeeld 2-4 appartementen is wellicht mogelijk.

Vanwege het cultuurhistorische en beeldbepalende karakter is het gebouw benoemd tot Rijksmonument. 

Belangstelling? We maken graag een afspraak!

Indeling

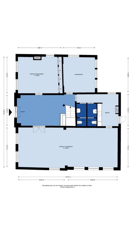
Entree met imposante hal welke is afgewerkt met een hardstenen vloer en houten plafond. Door de gemarmerde zuilen is de trapopgang naar de eerste verdieping te bereiken. 

Vanuit de hal zijn 4 ruimtes te bereiken. Aan de rechterzijde een prachtig en riant kantoor met veel raampartijen en uitzicht over de kreek. 

De keuken is direct vanuit het kantoor te bereiken en is voorzien van een keukeninrichting in wandopstelling voorzien van een verzonken spoelbak alsmede onder- en bovenkasten. 

Middels de buitendeur is het terrein te bereiken. Ideaal als parkeergelegenheid op eigen erf. 

Naast de keuken, te bereiken vanuit de centrale hal, zijn de toiletten te bereiken. Zowel het dames- als herentoilet is geheel betegeld en uitgevoerd met een duoblok closet en een wastafel. 

Dan de linkerzijde van dit statige pand. Hier zijn 2 fraaie en royale kantoorruimtes gesitueerd waarvan de voorste met een visgraat parketvloer en authentieke vaste kasten alsmede een schouw met een kolenkachel. 

De houten plafonds zijn doorgetrokken in alle ruimtes.

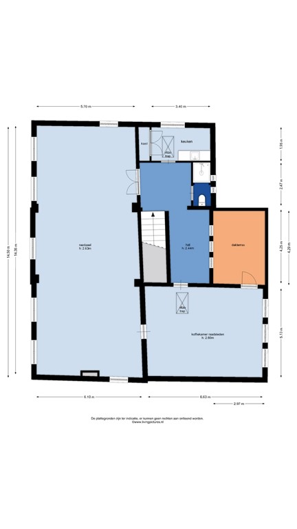
Eerste verdieping

Een statige trap leidt naar de eerste verdieping van het gebouw. Kijk even naar de prachtige traploper; hierop staan de beeltenissen van de glas-in-lood ramen van het pand.

De eerste verdieping is ingedeeld met verschillende ruimtes: garderobe- en ontvangstruimte, de voormalige raadzaal, voormalige leeszaal/koffiekamer met balkon, een keukentje en een toiletruimte.

De voormalige raadzaal is nu een prachtige open ruimte van ruim 80 m². 
De vloer is bedekt met hoogwaardige kwaliteit PVC; de ruimte heeft een hoog plafond met balken en de muren zijn afgewerkt met lambrisering en grof pleisterwerk. Er is een authentieke schouw met het wapen van Dinteloord en in de glas-in-loodramen zijn beeltenissen verwerkt van de bevrijding van Dinteloord op 04 november 1944.

De voormalige leeszaal/koffiekamer heeft afmetingen van (5,14m breed x 6,70m), is nu in gebruik als kantoor en heeft een aangrenzend balkon van (4,28m x 2,93m). Vanuit deze kamer is er – middels een vlizotrap – toegang tot de eerste bergzolder.

De toilet- / wasruimte is ingericht met een duoblok closet en een douche. 

De keuken is ingericht met een nette rechte keukenopstelling, voorzien van een spoelbak, een koelkastje en boven- en onderkastjes.
Vanuit deze ruimte is er - middels een vlizotrap - toegang tot de tweede bergzolder waar o.a. de CV ketel en boiler zijn opgesteld.

Tweede verdieping

De zolderverdieping bestaat uit 2 delen: één deel toegankelijk vanuit het keukentje en één vanuit de kantoorruimte.

Kortom, naast de geweldige eerste indruk van de buitenzijde, is ook de tweede indruk, de binnenzijde, zeer verrassend en zijn er diverse gebruiksmogelijkheden. We laten het u graag zien tijdens een persoonlijke rondleiding.

Deze verkoop is een collegiale samenwerking van Breure Makelaardij en Van Wensen Makelaars.

Balkon

Het balkon is gelegen op het zuidwesten, dus heerlijk zonnig. Hij is bereikbaar van de kleinste werkkamer op de 1e verdieping en heeft een oppervlakte van 12,5 m².

Kenmerken