Beschrijving
Ben jij op zoek naar een karakteristiek huis met ruimte, sfeer en een garage of hobbyschuur? Dit charmante jaren ’30 huis in het gezellige West-Brabantse Dinteloord biedt onder andere vier slaapkamers, een diepe tuin en een ruime garage.
Ga jij hier nieuw woongeluk vinden?
Indeling
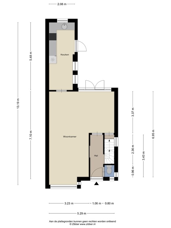
Je komt binnen in een lange hal die toegang biedt tot de woonkamer, de toiletruimte en de trap naar de eerste verdieping.
De woonkamer is een heerlijke, lichte leefruimte vol karakter. De houten parketvloer, het balkenplafond en de sfeervolle erker aan de voorzijde zorgen samen voor een warme uitstraling. De dubbele tuindeuren maken de verbinding met de tuin compleet en laten binnen en buiten op een mooie manier in elkaar overlopen. Dit is zo’n ruimte waar je je meteen thuis voelt.
Vanuit de woonkamer heb je toegang tot de kelder en tot de keuken. De kelder is compact, maar zeker praktisch als koele opslagruimte voor bijvoorbeeld voorraad of wijn.
De keuken is netjes onderhouden en functioneel ingericht met een hoekopstelling, voorzien van een keramische kookplaat, oven en afzuigkap. Er is bovendien ruimte voor een kleine eettafel, waardoor het ook een gezellige plek is om de dag te beginnen. De keuken is netjes en functioneel en vraagt wat modernisering en dit biedt dus kansen om deze geheel naar eigen wens en stijl aan te pakken.
Eerste verdieping
De eerste verdieping is praktisch ingedeeld en biedt ruimte aan twee royale slaapkamers en een derde, wat kleinere kamer. Deze extra kamer is ideaal als bijvoorbeeld werk- of kleedkamer en maakt de verdieping flexibel in gebruik.
De twee grotere slaapkamers zijn mooi van formaat en bieden volop mogelijkheden om ze naar eigen wens in te richten.
De badkamer is eenvoudig uitgevoerd en voorzien van een ligbad en een wastafel. Een functionele ruimte die desgewenst gemoderniseerd kan worden, zodat je ook hier je eigen stijl kunt toevoegen.
Tweede verdieping
Via een vaste trap bereik je de tweede verdieping, een volwaardige en verrassend ruime zolderverdieping. De open ruimte biedt veel mogelijkheden en is naar wens in te delen.
Of je nu op zoek bent naar een extra slaapkamer, een rustige werkplek of een hobbyruimte, deze verdieping leent zich er uitstekend voor. Dankzij de ruimte en flexibiliteit kun je hier echt je eigen invulling aan geven.
Tuin
De achtertuin is met circa 7 meter breed en maar liefst 18 meter diep een heerlijke buitenruimte met volop mogelijkheden. Of je nu wilt ontspannen, tuinieren of gezellig buiten wilt eten, hier is alle ruimte om het naar eigen wens in te richten.
De tuin is momenteel eenvoudig aangelegd, wat juist de kans biedt om er echt jouw eigen plek van te maken. Denk aan meerdere terrassen, sfeervolle sierbestrating, groenrijke borders of zelfs een gezellige buitenkeuken – de basis is er al.
Achterin de tuin is een ruime, dubbele garage met een praktische bergzolder. Ideaal voor het stallen van een auto, het opbergen van spullen of als werkruimte.
Naast de woning is een eigen oprit met een doorgang van circa 2 meter breed, waardoor je met een (kleine) auto de garage kunt bereiken. Een groot pluspunt dat zorgt voor extra gemak.
Plattegronden
184639573_1643880_steen_begane_grond_first_design_20260418_c3c8b5.jpg
184639573_1643880_steen_eerste_verdiepi_first_design_20260418_12727b.jpg
184639573_1643880_steen_tweede_verdiepi_first_design_20260418_34d06e.jpg
184639573_1643880_steen_kelder_first_design_20260418_b28e90.jpg
184639573_1643880_steen_garage_first_design_20260418_5637af.jpg
184639573_1643880_steen_zolder_first_design_20260418_7011e4.jpg