Beschrijving
Wauw! Wil jij graag nieuwbouw kopen, maar heb je geen zin om alles uit te zoeken en lang te wachten? Kijk en lees dan snel verder!
Dit appartement is eind vorig jaar opgeleverd, dus alles is gloednieuw. Met een eigen parkeerplek en een eigen berging heb je altijd plaats voor bijvoorbeeld je fiets en je auto! Die heb je voor je boodschappen overigens niet nodig, want alle winkels, zijn op loopafstand.
Met een Energielabel A++++ ben je verzekerd van een lage energierekening. Daarnaast biedt zo'n goed label ook extra mogelijkheden voor de financiering. Ben je een starter? Dan behoort een starterslening van de gemeente Steenbergen ook tot de mogelijkheden.
Kijk en lees dus snel verder of dit appartement voor jou nieuw woongeluk betekent!
Indeling
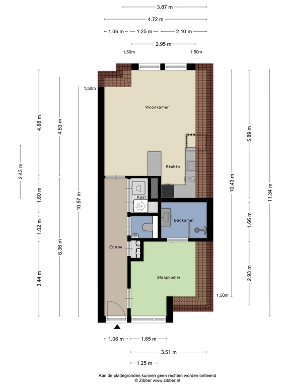
Bij binnenkomst zien we meteen de mooie pvc vloer die in het hele appartement ligt. We lopen de lange hal eerst helemaal door naar de woonkamer met open keuken. De woonkamer is een fijne ruimte met een mooie lichtinval door de ramen in de voorgevel en het dakraam. Door een slimme indeling van de keuken met barretje, blijft er genoeg plaats voor een ruime ruime zithoek over.
De keuken is opgesteld in een U-vorm en voorzien van een koelkast, een vaatwasser (smal model), inductie kookplaat, afzuigkap, combi oven en een vriezer. Deze is dus zeer compleet, zodat je heerlijk kan kokkerellen. Het barretje is een fijne plek voor een kop koffie of een maaltijd. En natuurlijk kan je hier ook prima plaatsnemen met je laptop voor een thuiswerkdag.
Dan gaan we terug de hal in richting de voordeur voor de slaapkamer met badkamer en-suite. Door de grote ramen, heb je ook hier een fijne lichtinval. De huidige eigenaar heeft qua bed voor een twijfelaar gekozen en heeft daardoor veel kastruimte. Uiteraard kan je ook voor een groter bed kiezen.
Het gehele appartement is trouwens voorzien van vloerverwarming met een aparte thermostaat voor de woonkamer, de slaapkamer en de badkamer.
De badkamer vind je en suite en is afsluitbaar via een mooie schuifdeur. Bij het uitkiezen van deze badkamer is aan de details gedacht. Zo is er gekozen voor een inloopdouche met ingebouwde kranen van geborsteld rvs en is er een mooi nisje voor de flessen.
Een houtlook wastafelmeubel en een spiegelkastje zorgen voor de nodige bergruimte.
Naast de vloerverwarming is er ook nog een elektrische designradiator.
Dan blijven er 3 deuren over in de hal. De eerste leidt naar de meterkast met 10 groepen en een fornuisgroep. Daarnaast vind je hier de aansluitpunten voor zowel Ziggo als KPN glasvezel.
Achter de tweede deur is de toiletruimte. Deze is geheel betegeld in wit/grijs combinatie en heeft een mooi zwevend toilet en een fonteintje.
Tot slot komen we bij de technische ruimte. Hier is - naast de wasmachine aansluiting - de mechanische ventilatie unit, de ventilatiewarmte pomp en een150 liter boiler. We hebben het namelijk nog niet besproken, maar het hele appartement is gasloos. Door de isolatie en de 4 zonnepanelen ben je dus verzekerd van een lage elektra rekening.
Balkon
Op de galerij - naast de trap die naar de verdieping leidt - kan je mooi een eigen plekje creëren om te genieten van de zon. Ga jij voor een comfortabel bankje of voor zo'n leuk Frans bistro setje?
Plattegronden
182211355_1626772_raadh_appartement_first_design_20260212_f98278.jpg
182211355_1626772_raadh_berging_first_design_20260212_399c99.jpg
182211355_1626772_raadh_parkeerplaats_first_design_20260212_c19ed2.jpg
182211355-296409175-se-149131747-1770883666703.png