Beschrijving

Woonhuis met mogelijkheid tot winkel op de begane grond. Dit pand biedt jullie heel veel mogelijkheden!

Het is ingedeeld met op de begane grond een winkel-/ werkruimte aan de voorzijde (straatzijde) en daarachter 2 kamers, een toiletruimte, keuken en badkamer.
De bestemming van elke ruimte is uiteraard naar eigen wens in te vullen: worden het werkruimtes of woonruimtes of een combinatie van deze?

Op de eerste verdieping is een woonruimte met woonkamer, keuken, balkon, badkamer en slaapkamer.

Nieuwsgierig of jij hier je woon- en/of werkwensen kunt realiseren? Neem contact met ons op om een bezichtiging af te spreken; zeker bij dit pand geldt, dat zelf rondlopen meer zegt dan 100 foto’s.

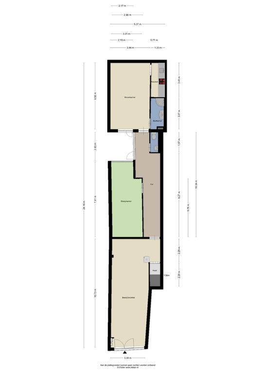
Indeling

Op de begane grond zijn de volgende ruimtes:
- Winkelruimte van circa 45 m²
- 2 x Woon- of werkkamer van circa 25 m²
- Toiletruimte, keuken, doucheruimte
- Binnenplaats 

De mooie kunststof pui aan de voorzijde van het pand is voorzien van HR ++ glas en helemaal te openen. 
De eerste ruimte is door de huidige eigenaren bedacht als winkelruimte en wij zien het al helemaal voor ons. Wat dacht je van een leuke beautysalon, een broodjeszaak,  een modewinkeltje of een kantoor? De mogelijkheden zijn legio!  Op de vloer ligt een grote vierkante tegel die makkelijk te onderhouden is. 

Achter het winkelgedeelte is een ruime hal die toegang geeft tot de 2 kamers van circa 25 m² groot en tot de toiletruimte met staand toilet en fonteintje; tot de badkamer met douche en wastafelmeubel en aansluitpunt wasmachine en tot de keuken met vaatwasser, inductiekookplaat, afzuigkap koelkast en een combi oven.

Wat zijn jouw ideeën voor de begane grond? Wordt het een winkel of werkruimte of ga je de hele ruimte bewonen? We zijn benieuwd!

Eerste verdieping

Via de voordeur aan de straatzijde, komen we in een lange hal met een trapopgang naar de eerste verdieping.
Bovengekomen, hebben we toegang tot  de woonruimte die behoort bij de ruimtes op de begane grond. 
Via een klein halletje, gaan we het huis binnen.
Dit huis is ingedeeld met onder andere een woonkamer met open keuken, een grote slaapkamer en een kleinere speel- of werkkamer en een badkamer.

De keuken is geplaatst in een rechte opstelling, heeft veel kastruimte en is ingericht met gaskookplaat, afzuigkap en vaatwasser.
Aan de keuken grenst een tussenhalletje - met wasmachineaansluiting en CV opstelling – welke toegang geeft tot een grote slaapkamer en tot de badkamer.
De grote slaapkamer wordt door de huidige eigenaar gebruikt als slaap-/werkkamer.
De badkamer is ingericht met wc, wastafelmeubel en douche
Bij deze woning is een balkon van circa 6 m²; dit is een fijne plek voor een kop koffie in de ochtendzon of om je heerlijk terug te trekken met een goed boek.

Bijzonderheden

Ook Oostvoorstraat 31A bieden wij te koop aan. 

Dit is een zelfstandig appartement op de eerste en tweede van het pand - heeft huisnummer 31a - en is ingedeeld met onder andere een woonkamer met open keuken en drie slaapkamers en heeft uitzicht op de mooie Dinteloordse kreek.
De vraagprijs van Oostvoorstraat 31A is  € 260.000.

Kenmerken