Beschrijving
Sfeervol half-vrijstaand herenhuis met sfeer, tuin en ruimte in Dinteloord.
Stap binnen in dit karakteristieke half-vrijstaande herenhuis uit 1923, gelegen in het hart van Dinteloord. Met talloze authentieke details, een gezellige kamer en suite, vier slaapkamers en een royale tuin op het oosten, biedt dit huis volop potentie voor wie op zoek is naar sfeer én ruimte. Het huis staat op een ruim perceel van maar liefst 490 m² en beschikt bovendien over een grote schuur – ideaal voor hobbyisten of voor extra bergruimte.
Wie pakt deze unieke kans om een charmant familiehuis helemaal naar eigen smaak te gaan bewonen?
Indeling
Via de karakteristieke voordeur kom je in een lange hal met gestucte wanden en een mooie authentieke tegelvloer die direct de sfeer van het huis weerspiegelt. Originele paneeldeuren, bakkelieten schakelaars en andere jaren ’20-details geven dit huis een uniek karakter.
De hal geeft toegang tot keuken, de woonkamer, de toiletruimte en tot de eerste verdieping.
De woonkamer is een echte eyecatcher, met een houten vloer, hoge houten plafonds en een klassieke kamer en suite-indeling. De voor- en achterkamer kunnen worden gescheiden door schuifdeuren met vaste kasten. De open haard in de schouw in de voorkamer zorgt voor extra warmte en gezelligheid.
De gezellige keuken is aan de achterkant van het huis en is voorzien van een robuuste granieten vloer. De keuken heeft een vaste bergkast en is ingericht met een rechte keukenopstelling met natuurstenen werkblad, voorzien van een 6-pits gasfornuis met oven en een afzuigschouw.
Vanuit de keuken is er toegang tot de tuin.
Eerste verdieping
Via de trap in de hal bereiken we de eerste verdieping, waar drie slaapkamers en een badkamer zijn gesitueerd.
Aan de achterzijde van het huis is de royale masterbedroom – een sfeervolle kamer met voldoende ruimte en een speelse indeling. Deze kamer is voorzien van een wastafelmeubel én een vrijstaand ligbad op pootjes; heerlijk om te ontspannen aan het begin of einde van de dag!
Aan de voorkant van het huis zijn 2 slaapkamers; beiden van goed formaat om te gebruiken als kinderkamer, werkkamer of hobbyruimte. Beide kamers profiteren van een prettige lichtinval en zijn flexibel in te richten.
De badkamer is functioneel en compleet ingericht met een ruime douche, een toilet en een wastafelmeubel.
Tweede verdieping
De tweede verdieping is bereikbaar via een vaste trap en bestaat uit een voorzolder en een vierde slaapkamer. De voorzolder is praktisch ingericht als was-, vouw- en strijkruimte en biedt plaats aan de HR-combiketel (Atag). Ook is hier volop bergruimte aanwezig.
Aan de voorkant van het huis is een volwaardige slaapkamer, ideaal als logeerkamer, tienerkamer of extra werkkamer.
Tuin
Achter het huis is een heerlijk diepe achtertuin van maar liefst circa 40 meter, gelegen op het oosten. De tuin is ingericht met een groot gazon en diverse (fruit)bomen en biedt volop ruimte om te spelen, te tuinieren of gewoon te genieten van het buitenleven.
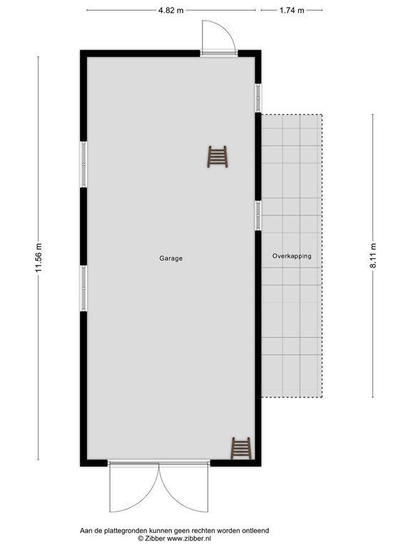
Midden op het perceel staat een ruime, karakteristieke schuur. Hoewel deze bouwkundig en cosmetisch aangepakt moet worden, is het een ideale plek om te transformeren tot werkruimte, hobbyruimte of atelier.
Circa 245 m² tuin wordt gehuurd van de gemeente Steenbergen.
Indien koper eveneens deze extra tuingrond wil huren, dan kan contact worden opgenomen met de gemeente Steenbergen. Wij informeren u hier graag over tijdens een bezichtiging. Deze 245 m² kan ook gekocht worden van de gemeente voor € 125,- per m² k.k.
Plattegronden
176128180_1572956_ooste_begane_grond_first_design_20250827_d894a2.jpg
176128180_1572956_ooste_eerste_verdiepi_first_design_20250827_f0c9e8.jpg
176128180_1572956_ooste_tweede_verdiepi_first_design_20250827_67c291.jpg
176128180_1572956_ooste_berging_first_design_20250827_3cac87.jpg
176128180_1572956_ooste_garage_first_design_20250827_6a4649.jpg
176128180_1572956_ooste_zolder_first_design_20250827_0f8103.jpg