Beschrijving

Heerlijk rustig wonen in een fijn huis met een grote voor- en achtertuin, in een mooie groene straat? Het kan in deze 2-onder-1 in de Johan Frisolaan in Dinteloord. Dichtbij de dorpse voorzieningen én dichtbij de snelweg richting grotere plaatsen als Rotterdam, Breda en Antwerpen.
Het huis is ingedeeld met onder andere een gezellige leefkamer, compleet uitgeruste keuken, 4 slaapkamers en - in de voormalige garage - een mogelijkheid tot werkruimte aan huis.

Dinteloord is een leuk dorp in West Brabant met veel voorzieningen, zoals onder andere 3 basisscholen, een oplucht zwembad, sportfaciliteiten en een goed winkelaanbod.
Benieuwd of jij hier nieuw woongeluk kan vinden? Spreek dan een bezichtiging met ons af; we geven je graag een rondleiding en vertellen je alles dat we weten over het huis én de plek!

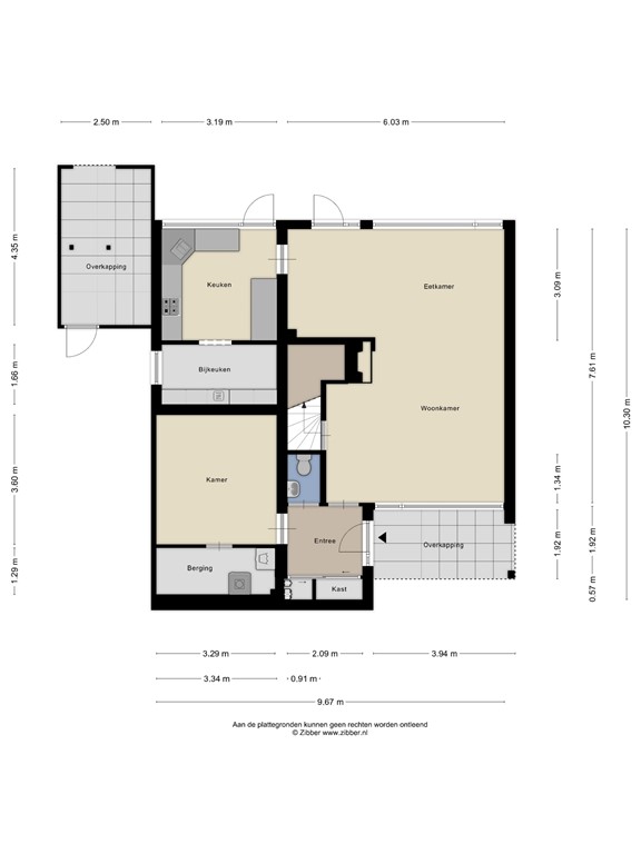
Indeling

Ruime hal met garderobekast en meterkast, toegang tot toiletruimte en tot de voormalige garage. De garagedeur is aan de buitenkant van het huis nog zichtbaar, maar binnen is de ruimte opnieuw ingedeeld met werkruimte en bijkeuken.

Aan de voorkant van het huis is de gezellige woonkamer, in U-vorm, met in het midden een grote open haard: mooi centraal in de kamer zodat je er vanuit alle hoeken plezier van hebt. Aan de achterkant is de doorgang naar de keuken. Deze is geplaatst in een hoekopstelling en uitgerust met vaatwasser, gaskookplaat en afzuigkap en in een aangrenzende ruimte extra kasten, een dubbele koelkast, vriezer, oven en combi oven/magnetron.
Ook heeft de keuken een eetbarretje: handig voor een snel ontbijtje of kop koffie. Alles bij elkaar een mooie complete keuken voor heel veel kookplezier!

Zowel in de keuken als in de woonkamer is een loopdeur naar de tuin.

Eerste verdieping

Bovengekomen op de eerste verdieping, zien we een overloop welke toegang geeft tot 3 slaapkamers, de badkamer en de vaste trap naar tweede verdieping.
Twee slaapkamers zijn aan de voorkant van het huis en bieden allebei toegang tot het balkon. 

Slaapkamer 1 (2.67m * 2.27m) met parketvloer, behangwanden en een gespoten plafond. 
Slaapkamer 2 (3,12m * 3.75m) met vaste kast, laminaatvloer, gespoten wanden en plafond.
Slaapkamer 3 (3.06m * 3.69m) met vaste kasten, laminaatvloer gespoten wanden en plafond

De badkamer is betegeld in een lichte kleurstelling en ingericht met toilet, ligbad met douche en wastafelmeubel.

Tweede verdieping

Ook de tweede verdieping biedt veel ruimte: als eerst een ruime voorzolder, ideaal om te gebruiken als werk- of speelruimte. Deze voorzolder heeft een vaste kastenwand en extra bergruimte onder de schuine dakzijde. In een van de kasten is de CV ketel opgesteld (Nefit Econline HRC30, bouwjaar 1999).

Op deze verdieping is ook de vierde slaapkamer van het huis. Met afmetingen van (3,02m * 3m) kan dit een heerlijke tienerkamer zijn.
De hele tweede verdiepingsvloer is bedekt met laminaat. De muren en schuine wanden zijn geschilderd.

Tuin

Wat een geweldige tuin is dit! Vijvers, bloeiende borders en zowel voor- als achterin de tuin terrassen. De tuin ligt op het oosten waardoor je naar eigen wens kunt genieten van zon of schaduw. Ontbijtje in de zon? Dat kan op het terras direct achter het huis. Drankje in de avondzon? Zet dan een stoel op het terras achterin de tuin. Waar je ook gaat zitten, je hebt altijd zicht op de mooie strakke vijverpartij met watervalletjes en kleurrijke waterbloemen.

Wil je vanuit de voortuin direct naar de achtertuin? Dat kan via het brede pad naast het huis, dat leidt van de oprit naar de achtertuin.

Kenmerken