Beschrijving
Houden jullie van veel ruimte in huis en tuin? Kijk dan eens naar deze leuke 2-onder-1 kap in een mooie, groene straat in Dinteloord.
Het dak en de goten zijn dit jaar helemaal vernieuwd, dus daar heb je geen omkijken naar. Daarnaast biedt de aanbouw heel veel mogelijkheden. Je kunt hem gebruiken als berging zoals nu grotendeels gebeurt, maar je kunt er ook een badkamer en slaapkamer maken óf misschien is het iets voor je hobby of een eigen bedrijf aan huis?
In 2022 zijn 3 airco's geplaatst waarmee je kunt koelen én verwarmen. Een duurzame optie dus om het hele huis op de gewenste temperatuur te krijgen, naast de bestaande centrale verwarming en houtkachel. Aan jou de keuze welke warmtebron je wilt gebruiken!
Is jouw interesse gewekt? Kijk en lees snel verder of bel ons om een bezichtiging af te spreken.
Indeling
Hal met meterkast (8 groepen en 2 aardlekschakelaars). De toiletruimte is een paar treden hoger en heeft een staand toilet.
Vanuit de hal, kom je binnen in de keuken. Het is een grote keuken met veel werk- en bergruimte en hij is lekker licht door het grote raam. Qua apparatuur vind je er een 5-pits gasfornuis, afzuigkap en een vaatwasser. Ook is er een 2e aanrechtblad, ideaal voor apparaten die je vaak gebruikt, zoals een koffieapparaat, een waterkoker of een broodrooster.
In het verlengde van de keuken is de bijkeuken; deze is voorzien van onder andere een oven, een magnetron en nog meer bergruimte. Ook vind je hier de CV ketel en het aansluitpunt voor wasmachine en droger.
Dan gaan we terug naar de woonkamer. Deze is lekker ruim, heeft een houten vloer en een houtkachel. De aangebouwde serre, geeft nóg meer leefruimte.
De huidige eigenaren maken veel gebruik van deze ruimte, zeker omdat een airco (2022) zorgt voor een aangename warmte.
Vanuit de serre is er toegang tot een 2e hal, die de bijkeuken verbindt met de aanbouw. Deze is nu grotendeels in gebruik als berging, maar zoals eerder beschreven kan je hier heel veel kanten mee op!
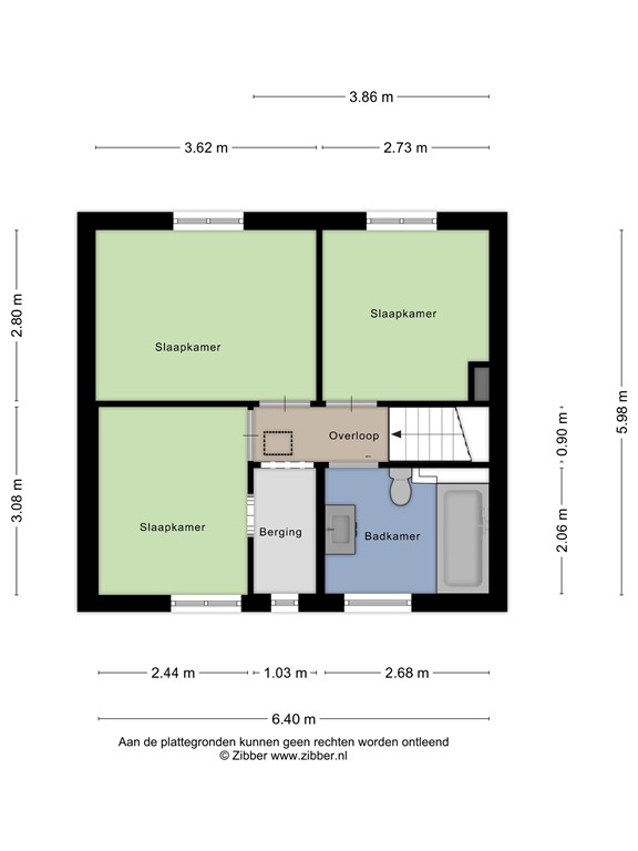
Eerste verdieping
Een overloop met toegang tot 3 slaapkamers, een bergruimte en de badkamer.
De grootste slaapkamer is aan de achterzijde van het huis en heeft afmetingen van 3,62m * 2,80m. De andere 2 slaapkamers zijn bijna even groot met een oppervlakte van 7,5 m² en 7,6 m².
Bij de slaapkamer aan de voorkant is een doorgang naar de voormalige badkamer. Een ideale ruimte om een inloopkast te maken.
Tot slot komen we bij de badkamer, deze is uitgerust met een ligbad met douche, een staand toilet en een wastafelmeubel.
De hele verdieping is voorzien van kunststof kozijnen met draai-kantel ramen met HR glas en horren tegen insecten!
Tweede verdieping
De tweede verdieping is een bergzolder die bereikbaar is via een nieuwe vlizotrap.
Tuin
De tuin is in 2022 volledig onderhoudsvriendelijk aangelegd met sierbestrating. Heb jij liever wat meer groen, dan kan je er uiteraard tegels uithalen. De tuin ligt op het Noord-Westen en is zo diep dat je heel de dag wel een plekje kan vinden in de zon of in de schaduw.
Plattegronden
179378431_1591094_groen_begane_grond_first_design_20251117_bae44f.jpg
179378431_1591094_groen_eerste_verdiepi_first_design_20251117_d7ca75.jpg
179378431_1591094_groen_zolder_first_design_20251117_b9fc56.jpg
179378431_1591094_groen_overkapping_first_design_20251117_abd04d.jpg