Beschrijving

Per 1 oktober komt er een appartement vrij in de Petrus & Paulus in Dinteloord!

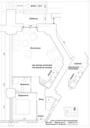
Het appartement is gelegen op de begane grond. Het is circa 52 m²  groot  en heeft een balkon op het zuidwesten!
Het appartement in ingedeeld met 1 slaapkamer, een badkamer en een woonkamer met open keuken.

De maandelijkse huursom is als volgt opgebouwd: 
- Kale huur € 1.106,05
- Voorschot servicekosten € 105 
- Verbruik water € 13,19

Algemene kenmerken van het appartement:
- Appartement is gasloos en heeft Energielabel A
- Vloerverwarming aanwezig
- Keuken met inductie kookplaat, afzuigkap, combi magnetron en vaatwasser
- Badkamer heeft een douche, wastafel en een toilet
- Eigen berging in het souterrain
- Gezamenlijk binnen-terras met coffee corner en zitjes 
- Collectief buitenterras aan de voorzijde van de kerk
- Collectieve overdekte fietsenstalling op het buitenterrein

LET OP: 
- Het appartement is geschikt voor maximaal 2 volwassenen 
- De inkomens-eis is minimaal 3,5 keer de kale huur, dus minimaal € 3.871,17 bruto per maand
- Als je na bezichtiging interesse hebt vragen wij de volgende documenten bij je op:
* Huidige adresgegevens
*  Kopie identiteitsbewijs 
* 3 recente salarisstroken of jaarcijfers 2023 en 2024
* Recente werkgeversverklaring
* Bankafschriften met hierop zichtbaar de bijschrijvingen van het salaris conform de salarisstroken
* Verhuurdersverklaring van huidige verhuurder

Kenmerken